12936 Sewell Avenue, Kansas City, KS 66109

     
  • 3Beds
  •   
  • 2 Baths
  •  
  • 1½ Bath
  •  
  • 1,647Sq Ft
Mortgage Calculator

$429,950
 est. $2,331/mo

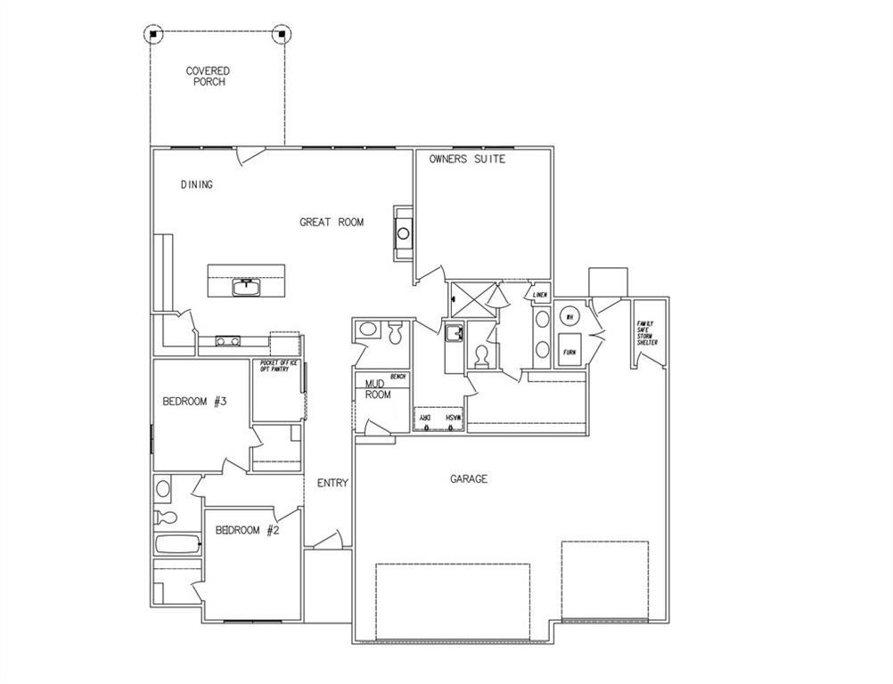
BRAND NEW 3-BED RANCH WITH OPEN FLOOR PLAN AND MAIN LEVEL LIVING! Welcome to the NEW Lisa Marie plan—a beautiful new construction ranch designed for comfort and convenience. Enjoy one-level living with LVP floors flowing through the kitchen, dining, and living areas, complemented by a cozy fireplace in the great room. The kitchen includes granite countertops, a walk-in pantry, and direct access to a bright den or office space. The primary suite feels like a retreat with a large walk-in closet, private bath featuring a spacious shower, and convenient laundry access right off the master closet. Two additional bedrooms and a full bath are located on the opposite side for added privacy. This smart layout blends modern finishes with functional design—perfect for everyday living and entertaining. Home is currently in the permitting stage and has an estimated completion date of November/December 2026. Room sizes and taxes are estimated. Seller is a licensed real estate agent in Kansas and Missouri.

Directions
From K7, East on Leavenworth Road to 131st Street, North on 131st Street to Sloan Ave, East on Sloan to 129th Terrace, North on 129th Terrace to property.......this is the 3rd lot from the corner
Subdivision
Piper Creek Estates
City
Kansas City
County
Wyandotte
Property Type
Residential / Single Family Residence
Listing Updated
Apr 10, 2026 at 10:04am
MLS Number
2613482
Property Tax
$8,600
Home Owners Association
Yes - Tomahawk Valley
Disclaimer
The information displayed on this page is confidential, proprietary, and copyrighted information of Heartland Multiple Listing Service, Inc. (“Heartland MLS”). Copyright 2026, Heartland Multiple Listing Service, Inc. Heartland MLS, Elite Realty and Agent Jo do not make any warranty or representation concerning the timeliness or accuracy of the information displayed herein. In consideration for the receipt of the information on this page, the recipient agrees to use the information solely for the private non-commercial purpose of identifying a property in which the recipient has a good faith interest in acquiring.
The data relating to real estate displayed on this website comes in part from the Heartland Multiple Listing Service database compilation. The properties displayed on this website may not be all of the properties in the Heartland MLS database compilation, or all of the properties listed with other brokers participating in the Heartland MLS IDX program. Detailed information about the properties displayed on this website includes the name of the listing company.
Information is deemed reliable but is not guaranteed.

Copyright © 2026 ELITE Realty.