5711 Westgate Street, Shawnee, KS 66216

     
  • 3Beds
  •   
  • 2 Baths
  •  
  • 1½ Bath
  •  
  • 1,676Sq Ft
Mortgage Calculator

$400,000
 est. $1,808/mo

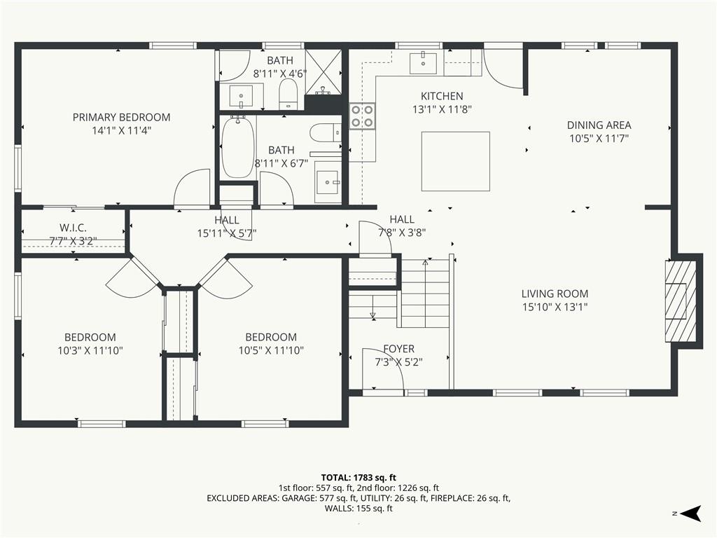
Completely remodeled and move-in ready, this stunning home at 5711 Westgate blends modern finishes with a functional open layout in a highly desirable Shawnee location. Step inside to an open-concept main level where the kitchen, dining, and family room flow seamlessly together—perfect for everyday living and entertaining. The fully updated kitchen features brand-new cabinetry, quartz countertops, stainless steel appliances, and a large center island designed for gathering. The main living area is anchored by a new modern fireplace, creating a warm and inviting focal point. Throughout the home, you’ll find new interior and exterior paint, luxury vinyl plank flooring, new carpet, and updated lighting, delivering a clean, cohesive design. All bathrooms have been fully renovated with new vanities, fixtures, and lighting, including a beautifully updated primary suite with tiled shower and a refreshed main bath with tile shower/tub combo. The finished walk-out basement offers additional living space and opens to a large backyard, while the deck off the kitchen provides great outdoor entertaining space. Conveniently located within walking distance to Ray Marsh Elementary, and just minutes from shopping, dining, and highway access.

Directions
Johnson Drive to Rosehill Rd, North to W58th Ter and go east and follow to home on the right.
Subdivision
Westgate Place
City
Shawnee
County
Johnson, KS
Property Type
Residential / Single Family Residence
Listing Updated
Apr 18, 2026 at 10:04am
MLS Number
2612956
Property Tax
$3,674
Home Owners Association
No
Disclaimer
The information displayed on this page is confidential, proprietary, and copyrighted information of Heartland Multiple Listing Service, Inc. (“Heartland MLS”). Copyright 2026, Heartland Multiple Listing Service, Inc. Heartland MLS, Elite Realty and Agent Jo do not make any warranty or representation concerning the timeliness or accuracy of the information displayed herein. In consideration for the receipt of the information on this page, the recipient agrees to use the information solely for the private non-commercial purpose of identifying a property in which the recipient has a good faith interest in acquiring.
The data relating to real estate displayed on this website comes in part from the Heartland Multiple Listing Service database compilation. The properties displayed on this website may not be all of the properties in the Heartland MLS database compilation, or all of the properties listed with other brokers participating in the Heartland MLS IDX program. Detailed information about the properties displayed on this website includes the name of the listing company.
Information is deemed reliable but is not guaranteed.

Copyright © 2026 ELITE Realty.