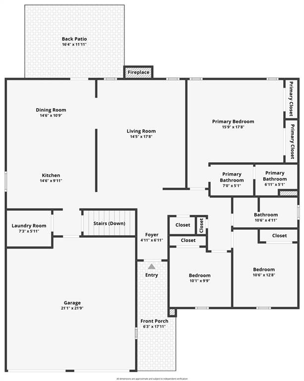
1808 Northwest 4th Place, Blue Springs, MO 64014

     
  • 3Beds
  •   
  • 2 Baths
  •  
  • 0½ Baths
  •  
  • 1,528Sq Ft
Mortgage Calculator

$315,000
 est. $1,454/mo

Welcome to this inviting home nestled in the desirable Hunter's Dell subdivision — offering comfort, character, and room to make it your own. Step inside to find beautiful wood floors flowing through bright, open living spaces. The spacious family room, anchored by a cozy fireplace, provides the perfect spot for relaxing or entertaining. The kitchen and dining area open conveniently to the back deck, ideal for grilling or enjoying your fenced backyard retreat — great for kids, pets, or peaceful evenings outdoors. Practical features include a main-floor laundry room, a 2-car garage, and a full unfinished basement ready for your customization — plenty of potential for a recreation space, home gym, or extra storage. Upstairs, the bedrooms offer comfort and privacy, while the primary suite includes an ensuite bath that could easily be updated to reflect your personal style.

Directions
I-70 to 7 hwy, head north on 7 and then turn right on Duncan, left on 4th st and address is on the right
Subdivision
Hunter's Dell
City
Blue Springs
County
Jackson
Property Type
Residential / Single Family Residence
Listing Updated
Apr 09, 2026 at 4:04am
MLS Number
2612874
Property Tax
$3,258
Home Owners Association
No
Disclaimer
The information displayed on this page is confidential, proprietary, and copyrighted information of Heartland Multiple Listing Service, Inc. (“Heartland MLS”). Copyright 2026, Heartland Multiple Listing Service, Inc. Heartland MLS, Elite Realty and Agent Jo do not make any warranty or representation concerning the timeliness or accuracy of the information displayed herein. In consideration for the receipt of the information on this page, the recipient agrees to use the information solely for the private non-commercial purpose of identifying a property in which the recipient has a good faith interest in acquiring.
The data relating to real estate displayed on this website comes in part from the Heartland Multiple Listing Service database compilation. The properties displayed on this website may not be all of the properties in the Heartland MLS database compilation, or all of the properties listed with other brokers participating in the Heartland MLS IDX program. Detailed information about the properties displayed on this website includes the name of the listing company.
Information is deemed reliable but is not guaranteed.

Copyright © 2026 ELITE Realty.