13823 W 80th Street, Lenexa, KS 66215

     
  • 3Beds
  •   
  • 2 Baths
  •  
  • 0½ Baths
  •  
  • 1,808Sq Ft
Mortgage Calculator

$380,000
 est. $1,789/mo

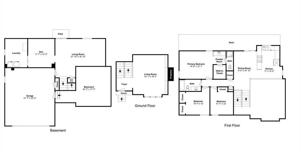
Welcome to this well maintained charming home. Open and inviting floor plan with room for everyone! 3 spacious bedrooms up and an office/non-conforming bdrm down. The vaulted great room features a fireplace flanked by built-ins and the huge front windows have a window seat! The kitchen is equipped with stainless steel appliances (including a new range) as well as quartz counter tops and a pantry for plenty of storage. Head down to the lower level to enjoy movie nights or game nights in the spacious family room. Walk out to a beautiful stamped contrete patio and enjoy serene evenings. This home also has an unfinished basement for plenty of storage space. Recent improvements include a new driveway and front stoop, stamped concrete patio, new electric panel and a new electric range. Move in ready home! Ideal location. 1 block to the elementary school, 2 blocks to the Mill Creek Streamway Trails and Park. Just a couple miles from Shawnee Mission Park and all the cool new restaurants and activities at Lenexa City Center.

Directions
79th Street west of Pflumm to Rene. South on Rene. Right on 80th Street.
Subdivision
Lexington
City
Lenexa
County
Johnson, KS
Property Type
Residential / Single Family Residence
Listing Updated
Mar 26, 2026 at 7:03pm
MLS Number
2609092
Property Tax
$4,350
Home Owners Association
No
Disclaimer
The information displayed on this page is confidential, proprietary, and copyrighted information of Heartland Multiple Listing Service, Inc. (“Heartland MLS”). Copyright 2026, Heartland Multiple Listing Service, Inc. Heartland MLS, Elite Realty and Agent Jo do not make any warranty or representation concerning the timeliness or accuracy of the information displayed herein. In consideration for the receipt of the information on this page, the recipient agrees to use the information solely for the private non-commercial purpose of identifying a property in which the recipient has a good faith interest in acquiring.
The data relating to real estate displayed on this website comes in part from the Heartland Multiple Listing Service database compilation. The properties displayed on this website may not be all of the properties in the Heartland MLS database compilation, or all of the properties listed with other brokers participating in the Heartland MLS IDX program. Detailed information about the properties displayed on this website includes the name of the listing company.
Information is deemed reliable but is not guaranteed.

Copyright © 2026 ELITE Realty.