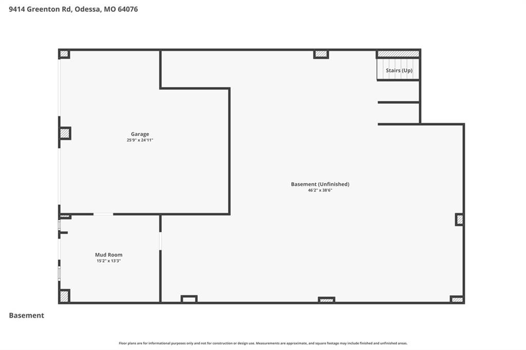
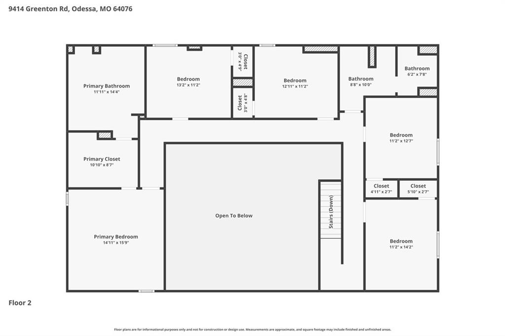
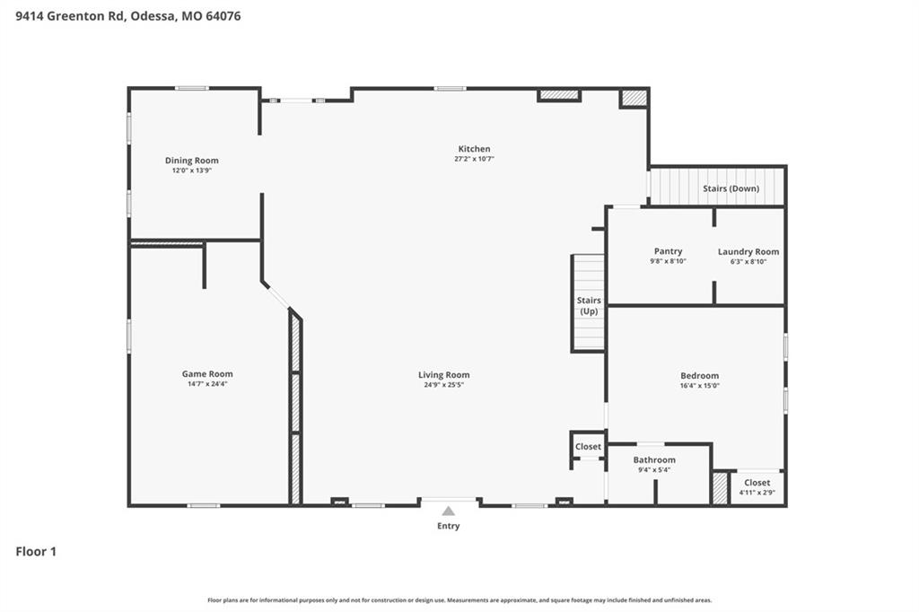
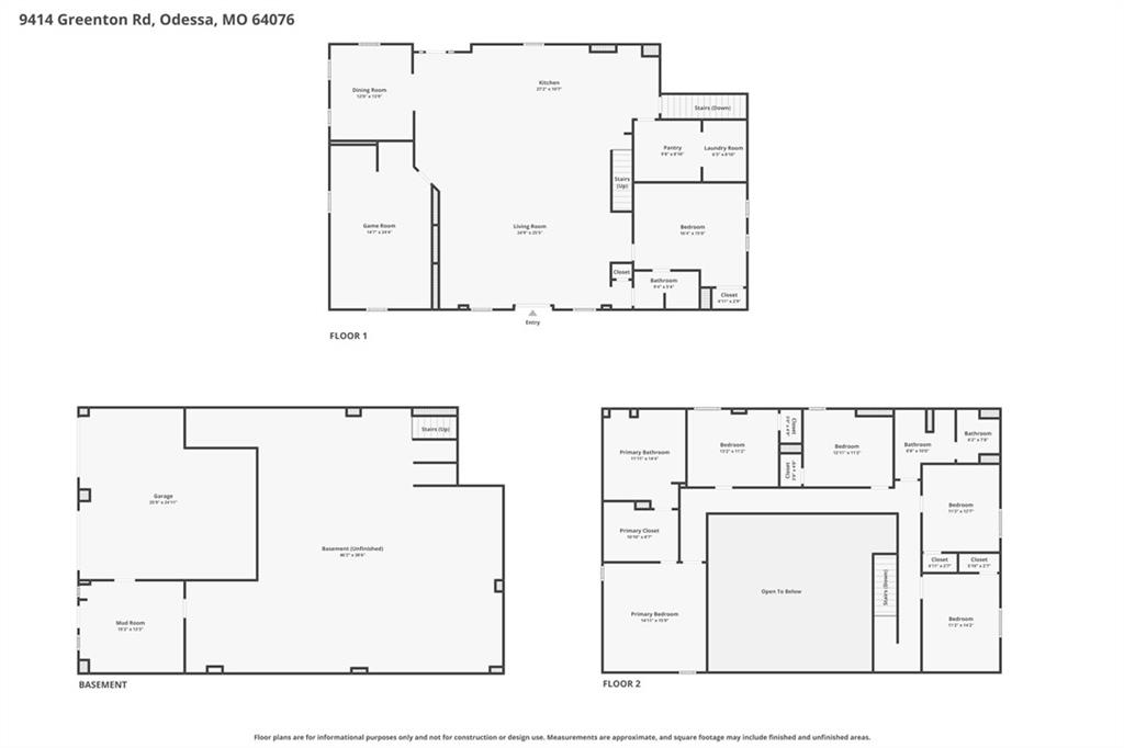
Custom-built Barndominium Situated on 4.93 Acres with Country Views for Miles! It Features 4,155 sq.ft. of Finished Living Space, Granite Kitchen Counters, 6 True Bedrooms, Zoned HVAC, a Large First Level Playroom/Den, AND Sits on a Full Walkout Basement with 9' Ceilings! The Newly Finished Master Bathroom Features a Separate Shower and Soaking Tub! All Bedrooms Feature Walk-in Closets. You Will Love Sitting Outside on Your Brand New 10'x50' Covered Porch Enjoying Those Country Views and Stunning Sunsets! Conveniently Located Just 3.5 Miles North of I-70 (all blacktop).
Copyright © 2026 ELITE Realty.