8300 E 110th Street, Kansas City, MO 64134

     
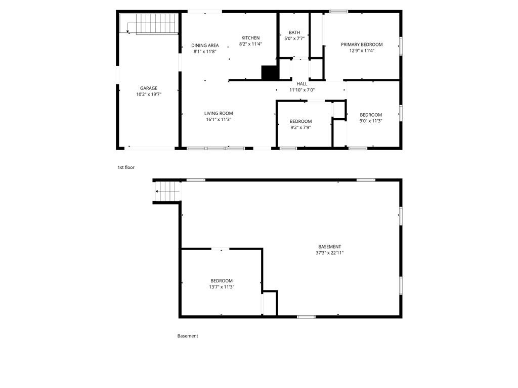
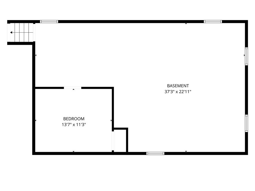
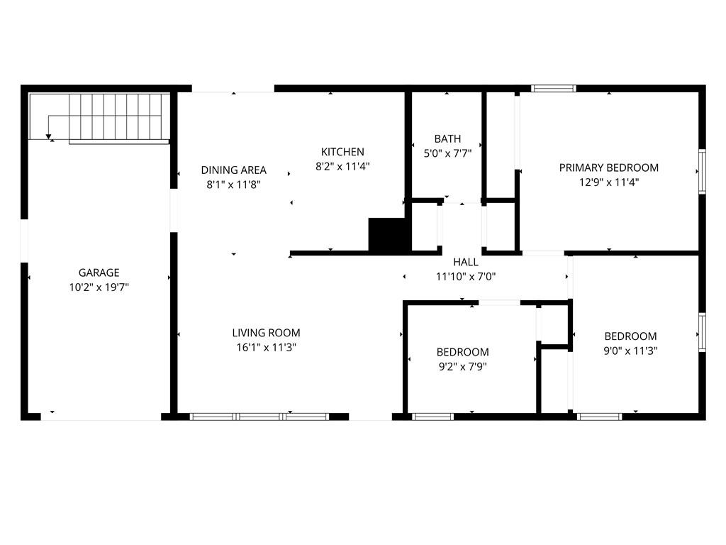
  • 3Beds
  •   
  • 1 Bath
  •  
  • 0½ Baths
  •  
  • 1,062Sq Ft
Mortgage Calculator

$174,950
 est. $749/mo

Charming 3 bedroom home with a full basement in popular South KC location! Nicely updated throughout with granite countertops, fresh paint, and beautifully remodeled kitchen and bath. Move-in ready and easy to love. Situated on a premier lot backing to greenspace with mature trees, offering added privacy and a great outdoor setting where you can enjoy the view from the new deck.

Directions
Red Bridge Rd to Hillcrest Rd, North to 107th, East to Marsha, South to 110th, West to home.
Subdivision
Ruskin Hills
City
Kansas City
County
Jackson
Property Type
Residential / Single Family Residence
Listing Updated
Mar 19, 2026 at 1:03am
MLS Number
2607762
Property Tax
$1,100
Home Owners Association
No
Disclaimer
The information displayed on this page is confidential, proprietary, and copyrighted information of Heartland Multiple Listing Service, Inc. (“Heartland MLS”). Copyright 2026, Heartland Multiple Listing Service, Inc. Heartland MLS, Elite Realty and Agent Jo do not make any warranty or representation concerning the timeliness or accuracy of the information displayed herein. In consideration for the receipt of the information on this page, the recipient agrees to use the information solely for the private non-commercial purpose of identifying a property in which the recipient has a good faith interest in acquiring.
The data relating to real estate displayed on this website comes in part from the Heartland Multiple Listing Service database compilation. The properties displayed on this website may not be all of the properties in the Heartland MLS database compilation, or all of the properties listed with other brokers participating in the Heartland MLS IDX program. Detailed information about the properties displayed on this website includes the name of the listing company.
Information is deemed reliable but is not guaranteed.

Copyright © 2026 ELITE Realty.