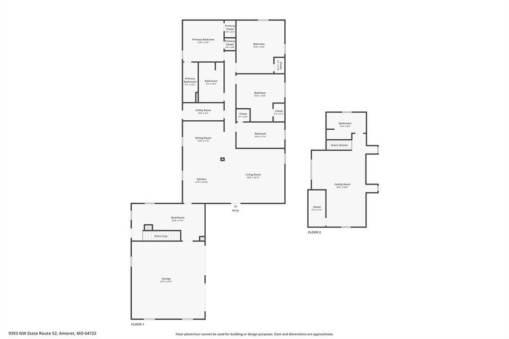
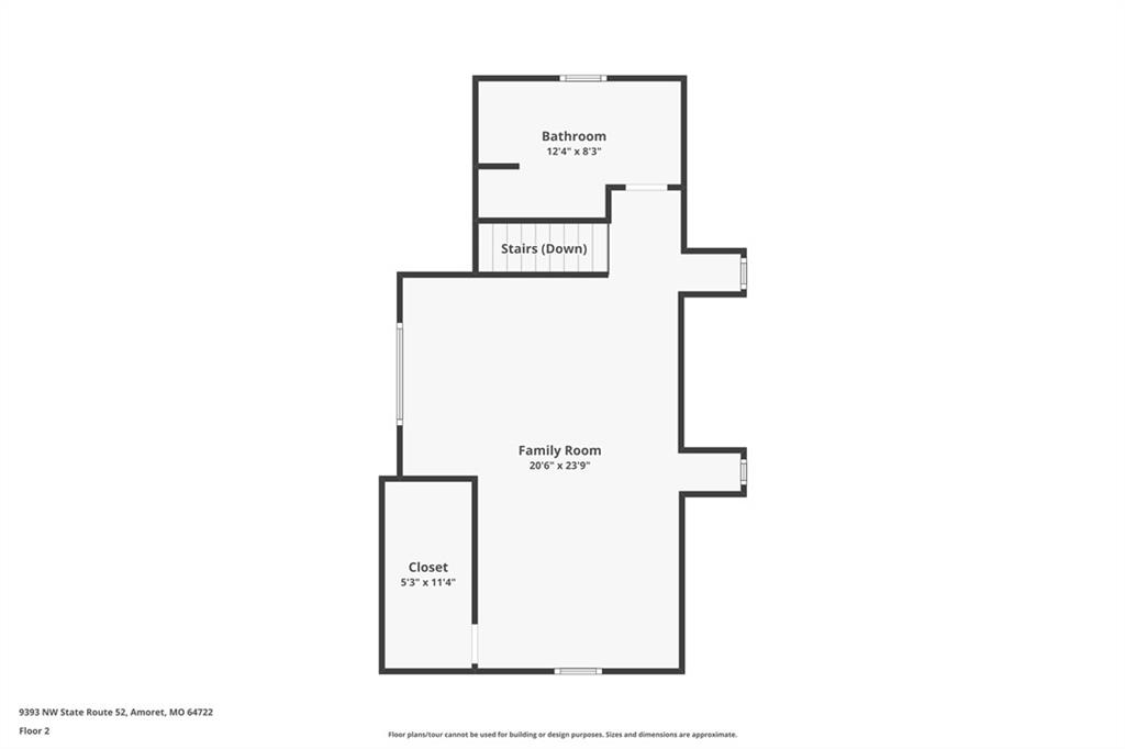
MOTIVATED SELLER SAYS BRING US AN OFFER! Welcome home to 9393 NW State Route 52! This beautifully renovated country retreat is ready and waiting for you to move right in. Thoughtfully updated from top to bottom, this home truly has it all—brand new roof installed 3/2026, new flooring, windows, walls, fixtures!. Step inside to a spacious main floor where the large living room flows seamlessly into a bright, fully renovated kitchen and adjoining dining room—perfect for everyday living and entertaining. Natural light fills the space, highlighting stunning cedar beams and warm cedar-wrapped accents that are even more impressive in person. Just down the hall, you’ll find a serene primary suite with an updated private bath, along with three additional bedrooms and a generously sized hallway bathroom. Each room features fresh paint, new lighting, and stylish, durable finishes throughout. Off the kitchen, a huge mudroom offers the ideal drop zone with access to both the garage and backyard—perfect for keeping life’s messes contained. It also leads to the second floor, where you’ll discover a versatile bonus space with a freshly updated kitchenette, a large bathroom, and a flexible open area that could be used as a studio apartment, home office, or non-conforming 5th bedroom. Two walk-in storage spaces complete this incredible upper level. Outside, enjoy the peace of mind that comes with brand new septic and the cost-saving benefit of solar panels—fully paid off and included! Sitting on 1 acre surrounded by open fields and pastures, you’ll enjoy the beauty of the country without the burden of maintaining lots of land. Located on a blacktop road just under 10 miles from both 69 Hwy and I-49, this home combines quiet country charm with convenient access to town. Come see for yourself—your next home is waiting!
Copyright © 2026 ELITE Realty.