11415 Minor Drive, Kansas City, MO 64114

Mortgage Calculator

$397,500
 est. $2,082/mo

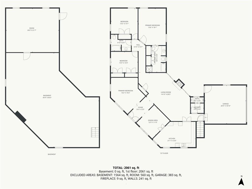
One of Red Bridge's rare true 2-family properties. Legitimate duplex zoning, two fully separate units, two separate entrances, on a 17,760 sq ft corner lot. At 3,368 sq ft, this is the largest duplex currently available in the immediate market. At $118 per square foot, it offers more space per dollar than any comparable sale in the area. Unit 1 (main level): 3 bedrooms, 2.5 bathrooms, 2,257 sq ft. Hardwood floors, exposed beam ceiling, brick fireplace, built-ins, and generous room sizes throughout. Large kitchen with abundant cabinetry. Full unfinished basement with walkout potential. Unit 2 (upper level): 2 bedrooms, 1 bathroom, 1,111 sq ft. Private entrance. Functional and self-contained. Live in one unit, rent the other. Hold both. Or renovate and maximize. The bones and the zoning support all three. Foundation work completed and certified by licensed structural engineer. 7 I-beam braces installed, cracks sealed, perimeter grading improved. Full documentation including initial report and completion letter available in MLS documents. Property needs updating. Priced to reflect condition. The right buyer will recognize the value in the bones, the zoning, and the documentation. New furnace in Unit 1. 3-car attached garage. Sold AS-IS. Inspections welcome for buyer's information only. Center School District. Minutes from Brookside, Ward Parkway, and major highways.

Directions
From State Line Rd and W 103rd St, go east on Minor Dr. Home is on the north side of the street.
Subdivision
Red Bridge
City
Kansas City
County
Jackson
Property Type
Residential Income / Duplex
Listing Updated
Apr 24, 2026 at 6:04am
MLS Number
2607072
Property Tax
$7,074
Zoning
$Duplex
Home Owners Association
No
Disclaimer
The information displayed on this page is confidential, proprietary, and copyrighted information of Heartland Multiple Listing Service, Inc. (“Heartland MLS”). Copyright 2026, Heartland Multiple Listing Service, Inc. Heartland MLS, Elite Realty and Agent Jo do not make any warranty or representation concerning the timeliness or accuracy of the information displayed herein. In consideration for the receipt of the information on this page, the recipient agrees to use the information solely for the private non-commercial purpose of identifying a property in which the recipient has a good faith interest in acquiring.
The data relating to real estate displayed on this website comes in part from the Heartland Multiple Listing Service database compilation. The properties displayed on this website may not be all of the properties in the Heartland MLS database compilation, or all of the properties listed with other brokers participating in the Heartland MLS IDX program. Detailed information about the properties displayed on this website includes the name of the listing company.
Information is deemed reliable but is not guaranteed.

Copyright © 2026 ELITE Realty.