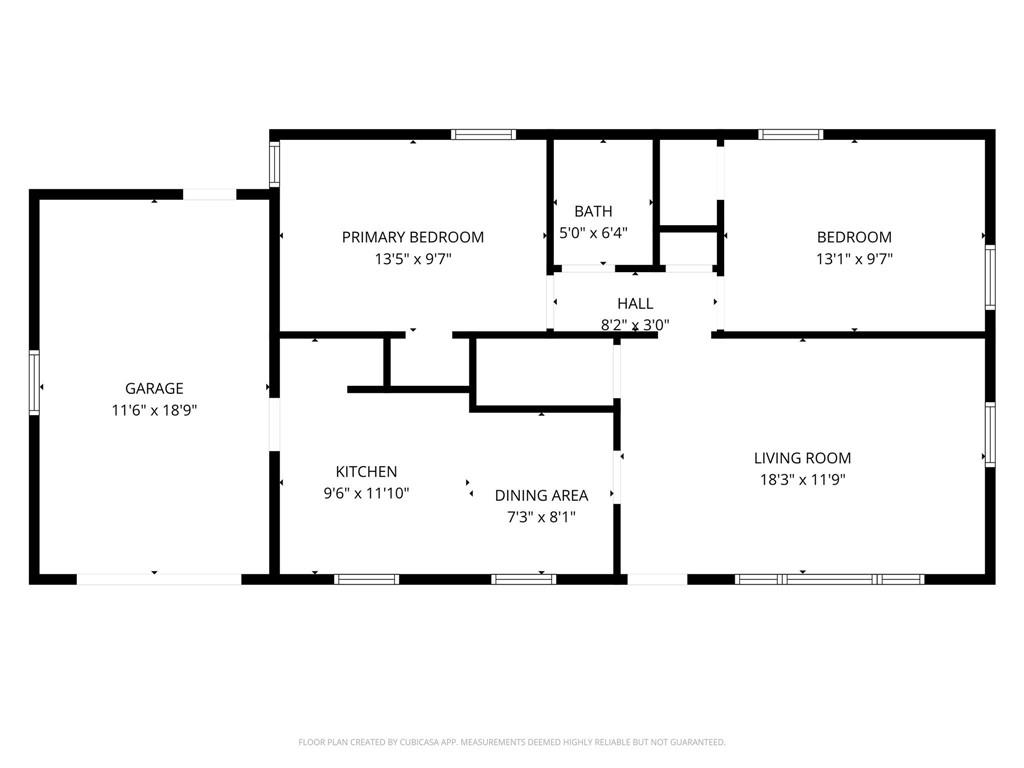
This 828 sq ft ranch-style residence features a functional 2 bedroom, 1 bathroom layout designed for efficient living. The interior includes a central living area that transitions into a kitchen equipped with a range, oven, and refrigerator. The 2 bedrooms are well-proportioned and feature neutral finishes, while the home maintains a consistent 1947-built silhouette with updated vinyl siding. Practical features include a detached garage and additional off-street parking, providing integrated storage and convenience. Situated on a .24 acre lot, the exterior highlights a spacious, level yard with established trees. Positioned in the Crooks Gardens subdivision, this home provides a solid foundation and easy access to the I-635 corridor and local recreation at Welborn Park. This residence provides a traditional floor plan and a low-maintenance exterior in the Kansas City area.
Copyright © 2026 ELITE Realty.