4989 W 150th Place, Leawood, KS 66224

     
  • 4Beds
  •   
  • 3 Baths
  •  
  • 1½ Bath
  •  
  • 4,872Sq Ft
Mortgage Calculator

$950,000
 est. $4,340/mo

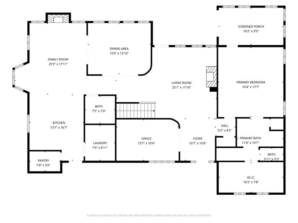
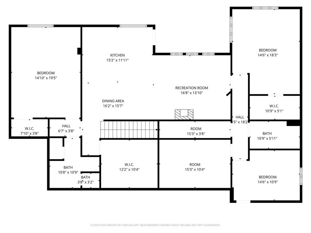
Light-filled and thoughtfully designed, this one-owner, custom-built reverse 1.5-story home in the sought-after Whitehorse community offers meticulous craftsmanship and a truly unique layout.Enjoy main-level living with all essential spaces, complemented by a spacious finished walk-out lower level providing abundant room for entertaining, relaxing, and guests, including larger dining room perfect for family gatherings.Many special features include soaring ceilings, elegant radial corners, and plantation shutters throughout the home. Enjoy outdoor living on the large deck and covered patio, both equipped with built-in gas spigots—perfect for grilling or outdoor heaters. The spacious kitchen offers a large walk-in pantry, hearth room with fireplace, adjoins an extra large dining room and the primary suite includes a versatile sitting room ideal for a workout space, media room, office, or hobby area. Abundant built-ins throughout the home provide both charm and exceptional storage. Impressive 15 feet,3 inch tall, 3-car garage offering exceptional vertical space-ideal for car enthusiasts, with ability to accommodate up to 5 vehicles with a lift. Office has room for a closet and the 1/2 bath could provide plumbing to make a full bath.The exercise room is stubbed to be converted to an extra bathroom.Home built with steel frame & beams as well as 8 inch poured concrete. All Kohler faucets except the kitchen. New dishwasher and garbage disposal. LED lighting throughout.

Directions
Nall to 148th St east to Rosewood, south to 150th Place, east to home on west side Mission to 148th St west to Linden, south to 150th Place, west to home on west side
Subdivision
Whitehorse
City
Leawood
County
Johnson, KS
Property Type
Residential / Single Family Residence
Listing Updated
Mar 28, 2026 at 10:03pm
MLS Number
2606041
Property Tax
$9,275
Home Owners Association
Yes - Whitehorse
Disclaimer
The information displayed on this page is confidential, proprietary, and copyrighted information of Heartland Multiple Listing Service, Inc. (“Heartland MLS”). Copyright 2026, Heartland Multiple Listing Service, Inc. Heartland MLS, Elite Realty and Agent Jo do not make any warranty or representation concerning the timeliness or accuracy of the information displayed herein. In consideration for the receipt of the information on this page, the recipient agrees to use the information solely for the private non-commercial purpose of identifying a property in which the recipient has a good faith interest in acquiring.
The data relating to real estate displayed on this website comes in part from the Heartland Multiple Listing Service database compilation. The properties displayed on this website may not be all of the properties in the Heartland MLS database compilation, or all of the properties listed with other brokers participating in the Heartland MLS IDX program. Detailed information about the properties displayed on this website includes the name of the listing company.
Information is deemed reliable but is not guaranteed.

Copyright © 2026 ELITE Realty.