824 Rowell Avenue, Excelsior Springs, MO 64024

     
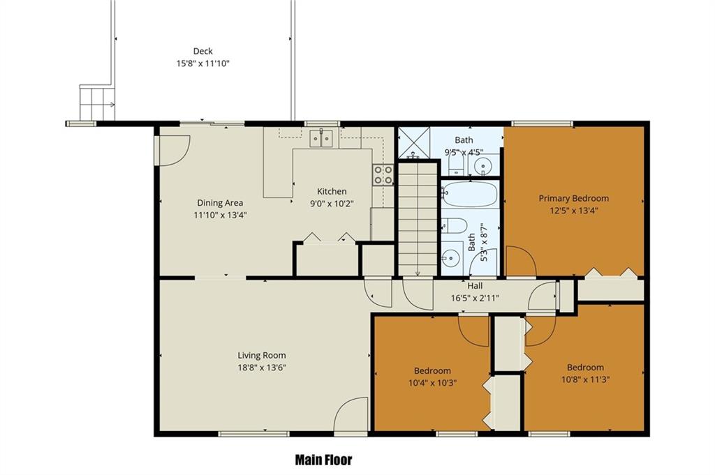
  • 3Beds
  •   
  • 2 Baths
  •  
  • 0½ Baths
  •  
  • 1,232Sq Ft
Mortgage Calculator

$215,000
 est. $1,006/mo

Welcome home to this well-maintained true ranch in a fantastic Excelsior Springs location! Offering 3 bedrooms and 2 bathrooms, this home provides comfortable one-level living with plenty of space to spread out. The large walkout basement offers endless possibilities for additional living space, storage, or a future finish to fit your needs. Situated in an established neighborhood with convenient access to schools, parks, and local amenities, this home is full of potential and ready for its next chapter.

Directions
from Jesse James Rd heading north, turn right onto Rowell, home will be on the left hand side.
Subdivision
Country Meadows
City
Excelsior Springs
County
Clay
Property Type
Residential / Single Family Residence
Listing Updated
Mar 13, 2026 at 12:03pm
MLS Number
2604743
Property Tax
$2,387
Home Owners Association
No
Disclaimer
The information displayed on this page is confidential, proprietary, and copyrighted information of Heartland Multiple Listing Service, Inc. (“Heartland MLS”). Copyright 2026, Heartland Multiple Listing Service, Inc. Heartland MLS, Elite Realty and Agent Jo do not make any warranty or representation concerning the timeliness or accuracy of the information displayed herein. In consideration for the receipt of the information on this page, the recipient agrees to use the information solely for the private non-commercial purpose of identifying a property in which the recipient has a good faith interest in acquiring.
The data relating to real estate displayed on this website comes in part from the Heartland Multiple Listing Service database compilation. The properties displayed on this website may not be all of the properties in the Heartland MLS database compilation, or all of the properties listed with other brokers participating in the Heartland MLS IDX program. Detailed information about the properties displayed on this website includes the name of the listing company.
Information is deemed reliable but is not guaranteed.

Copyright © 2026 ELITE Realty.