3644 Washington Avenue, Kansas City, KS 66102

     
  • 3Beds
  •   
  • 3 Baths
  •  
  • 1½ Bath
  •  
  • 2,514Sq Ft
Mortgage Calculator

$249,900
 est. $1,174/mo

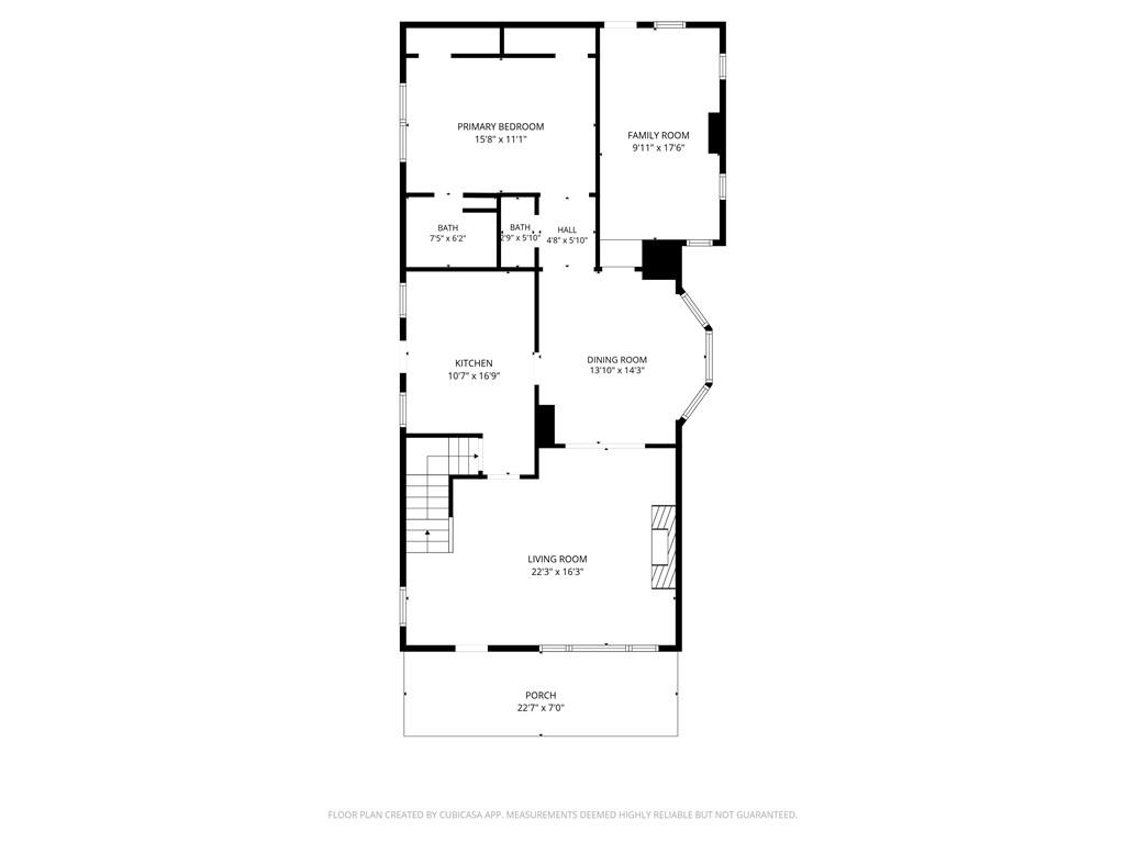
Now offered at $249,900 — seller is motivated and willing to help structure a deal with buyer credits, closing cost assistance, or rate buy-down options! Fully renovated 3 bedroom, 4th non-conforming, 3.5-bath home offering 2,400+ sq ft of living space — a rare combination of size, layout, and updates at this price point. Featuring a main-floor primary suite, two living areas, and a quartz kitchen, the home blends early-1900s character with modern systems. The finished lower level offers additional living space with egress and a 4th non-conforming bedroom and bath setup—ideal for guests or a home office. The main level delivers impressive scale with 9 ft ceilings, abundant light, and two living areas providing flexibility for entertaining or working from home. A spacious dining room connects to the remodeled kitchen featuring quartz countertops and updated cabinetry. The primary suite is conveniently on the main floor with a private bath, while a powder bath serves guests. Upstairs includes two additional bedrooms and a full bath, creating comfortable separation. The lower level offers a 4th non-conforming bedroom and finished space with egress and exterior entry—ideal for recreation or guests, with its own shower, vanity, and sink. Major updates: new roof, HVAC, windows, doors, updated kitchen/baths, and fresh finishes throughout. Offering generous square footage, main-level living, and extensive upgrades at a rare price for this size, this is an opportunity that demands attention. Property may qualify for special community lending, including potential grant funds and low down payment options. Consult your lender regarding eligibility. Seller has proactively addressed prior inspection items, offering a more complete, move-in ready home for the next owner. Recent price adjustment — Seller is motivated and encourages qualified buyers to submit offers — ready to work toward a smooth closing.

Directions
I-635 to State Ave., East on State Ave to 36th Street, North on 36th to Washington, West on Washington.
Subdivision
Woodland Park
City
Kansas City
County
Wyandotte
Property Type
Residential / Single Family Residence
Listing Updated
May 10, 2026 at 3:05pm
MLS Number
2603374
Property Tax
$2,825
Home Owners Association
No
Disclaimer
The information displayed on this page is confidential, proprietary, and copyrighted information of Heartland Multiple Listing Service, Inc. (“Heartland MLS”). Copyright 2026, Heartland Multiple Listing Service, Inc. Heartland MLS, Elite Realty and Agent Jo do not make any warranty or representation concerning the timeliness or accuracy of the information displayed herein. In consideration for the receipt of the information on this page, the recipient agrees to use the information solely for the private non-commercial purpose of identifying a property in which the recipient has a good faith interest in acquiring.
The data relating to real estate displayed on this website comes in part from the Heartland Multiple Listing Service database compilation. The properties displayed on this website may not be all of the properties in the Heartland MLS database compilation, or all of the properties listed with other brokers participating in the Heartland MLS IDX program. Detailed information about the properties displayed on this website includes the name of the listing company.
Information is deemed reliable but is not guaranteed.

Copyright © 2026 ELITE Realty.