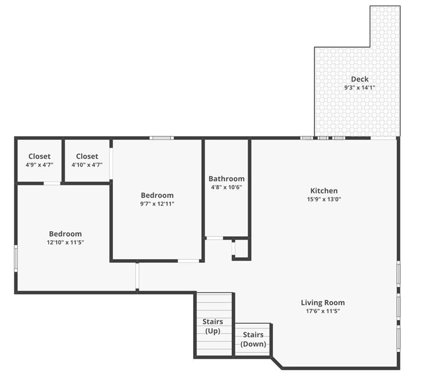
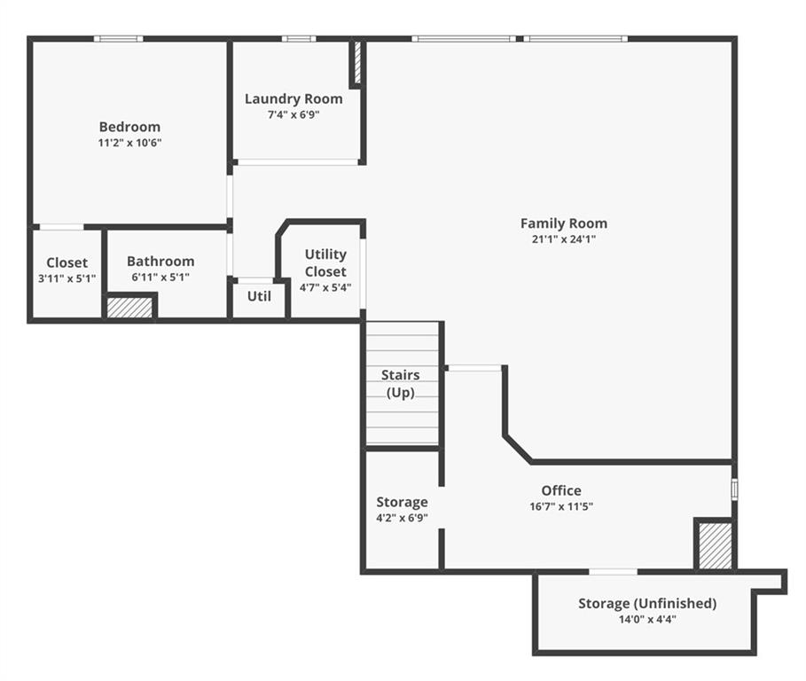
12670 S Hedge Court, Olathe, KS 66061

     
  • 4Beds
  •   
  • 3 Baths
  •  
  • 0½ Baths
  •  
  • 2,418Sq Ft
Mortgage Calculator

$475,000
 est. $2,191/mo

Soaring ceilings, spacious living areas, updated kitchen and appliance package. All bedrooms have walk in closets. Fully fenced yard w/irrigation Located in quiet cul-de-sac. Pride of ownership shows in this well equipped and thoughtfully updated home! During ownership seller has updated back yard w/deck + gazebo, replaced driveway, planted trees, HVAC + water heater 2018, roof + gutters 2026. New front window to be installed prior to closing. Smart home features include doorbell, exterior cameras, Tstat, smoke detectors, garage keypad, wifi irrigation controls.

Directions
From Clare Rd/127th. East to Meadow View St. North to 126th St. East to Hedge Ct.
Subdivision
Arbor Woods
City
Olathe
County
Johnson, KS
Property Type
Residential / Single Family Residence
Listing Updated
Mar 18, 2026 at 1:03am
MLS Number
2603324
Property Tax
$4,886
Home Owners Association
Yes - Arbor Woods
Disclaimer
The information displayed on this page is confidential, proprietary, and copyrighted information of Heartland Multiple Listing Service, Inc. (“Heartland MLS”). Copyright 2026, Heartland Multiple Listing Service, Inc. Heartland MLS, Elite Realty and Agent Jo do not make any warranty or representation concerning the timeliness or accuracy of the information displayed herein. In consideration for the receipt of the information on this page, the recipient agrees to use the information solely for the private non-commercial purpose of identifying a property in which the recipient has a good faith interest in acquiring.
The data relating to real estate displayed on this website comes in part from the Heartland Multiple Listing Service database compilation. The properties displayed on this website may not be all of the properties in the Heartland MLS database compilation, or all of the properties listed with other brokers participating in the Heartland MLS IDX program. Detailed information about the properties displayed on this website includes the name of the listing company.
Information is deemed reliable but is not guaranteed.

Copyright © 2026 ELITE Realty.