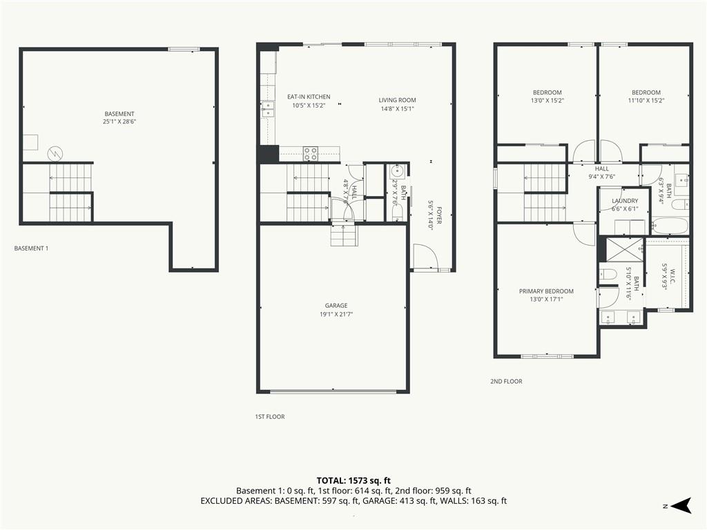
Back on the market, no fault of the sellers. We did not make it to the Inspections. This two-story townhome offers a bright, open main level designed for everyday living and easy entertaining. The living room flows seamlessly into the dining area and kitchen, creating a comfortable, connected space with plenty of natural light and modern finishes throughout. Upstairs, you’ll find the primary suite along with two additional bedrooms and a full bathroom. Laundry is conveniently located on the bedroom level. The lower level is an unfinished blank canvas, offering the opportunity to create additional living space, whether that’s a home office, gym, media room, or flex space tailored to your needs. Residents enjoy access to community amenities including a pool and clubhouse, along with HOA-covered snow removal, lawn care/mowing, and trash service—low-maintenance living handled. Located in Lee’s Summit, this townhome delivers a practical layout, room to grow, and everyday convenience.
Copyright © 2026 ELITE Realty.