16936 W 163rd Terrace, Olathe, KS 66062

     
  • 4Beds
  •   
  • 3 Baths
  •  
  • 1½ Bath
  •  
  • 2,442Sq Ft
Mortgage Calculator

$550,000
 est. $2,482/mo

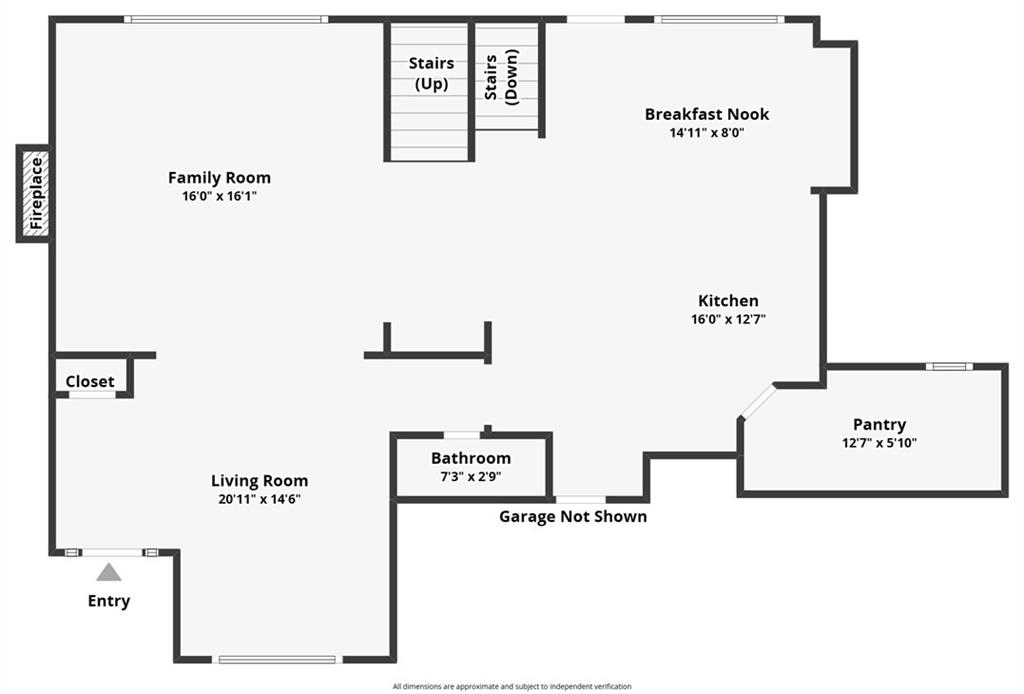
Welcome To 16936 W 163rd Ter — A Beautifully Designed, Cul-De-Sac Move-In Ready Home In One Of Olathe’s Top Neighborhoods. Built In 2018 The Chris George Yorkshire II Plan w/4-Beds, 3.5 Bath, 2,442 Sq Ft Of Well-Designed Living Space Above Grade, Plus An Unfinished Bsmt Ready For Expansion. Situated On A Green Space Easement Lot, This Home Offers Privacy & Peaceful Setting. The Main Level Is Bright & Open, Ideal For Everyday Living & Entertaining. The Chef Kitchen Features Oversized Granite Island w/Seats For 4, SS Sink, Enamel-Painted White Cabinets, Designer Pendant Lighting & Exhaust Hood. Additional Highlights Include SS Appliances, Designer Backsplash & Hrwd Floors. The Breakfast Area Overlooks The Backyard w/Hrwd Floors, Chandelier, 2 Picture Windows w/Shades. A Built-In Dry Bar w/Granite Counters & Floating Shelves Sits Between The Kitchen & LRM. The LRM Offers Carpeted Floors, Wall Of Windows, Gas F/P & Boxed Ceiling. The DRM Features A Designer Chandelier, Crown Molding, Tall Ceilings & Windows w/Privacy Shades. A Convenient ½ Bath Completes The Main Level w/Access To The Patio & Garage w/Professionally Epoxied Floor. Upstairs, The Primary Suite Is A True Retreat w/Vaulted Tray Ceiling, Accent Lighting, Crown Molding, Ceiling Fan, Window Blinds & Generous Space. The Primary Bath Includes Double Vanity w/Granite Counters, Walk-In Shower, Soaker Tub & Walk-In Closet w/Built-Ins Connecting To The Laundry Room. Bed #2 Has Southern Exposure, Walk-In Closet & Private En-Suite Bath. Beds #3 & #4 Share J-&-J Bath w/Separate Vanity Areas & Shower-Over-Tub. Bed #3 Features A Vaulted Ceiling, While Bed #4 Is Currently Used As An Office. The Unfinished Basement Has Egress Window & Bath Stub, Offering Excellent Expansion Potential. Additional Highlights Include A 7 Yr-Young Roof & Mechanicals, Radon Mitigation System, In-Ground Sprinkler System & Open Green Space Views. Buy, Close, Move In, Unpack, And Enjoy — Nothing Else To Do.

Directions
From I-35 & Santa Fe St: East Onto Santa Fe St, Turn Right (South) Onto S Mur-Len Rd, Turn Right (West) Onto W 162nd St, Turn Left (South) Onto S Britton St, Turn Left (East) Onto W 163rd Terr, Home Will Be On Your Left.
Subdivision
Stonebridge Meadows
City
Olathe
County
Johnson, KS
Property Type
Residential / Single Family Residence
Listing Updated
Jan 22, 2026 at 4:01am
MLS Number
2595780
Property Tax
$5,000
Home Owners Association
Yes
Disclaimer
The information displayed on this page is confidential, proprietary, and copyrighted information of Heartland Multiple Listing Service, Inc. (“Heartland MLS”). Copyright 2026, Heartland Multiple Listing Service, Inc. Heartland MLS, Elite Realty and Agent Jo do not make any warranty or representation concerning the timeliness or accuracy of the information displayed herein. In consideration for the receipt of the information on this page, the recipient agrees to use the information solely for the private non-commercial purpose of identifying a property in which the recipient has a good faith interest in acquiring.
The data relating to real estate displayed on this website comes in part from the Heartland Multiple Listing Service database compilation. The properties displayed on this website may not be all of the properties in the Heartland MLS database compilation, or all of the properties listed with other brokers participating in the Heartland MLS IDX program. Detailed information about the properties displayed on this website includes the name of the listing company.
Information is deemed reliable but is not guaranteed.

Copyright © 2026 ELITE Realty.