1809-1811 W 4th Street, Lawrence, KS 66044

Mortgage Calculator

$450,000
 est. $2,077/mo

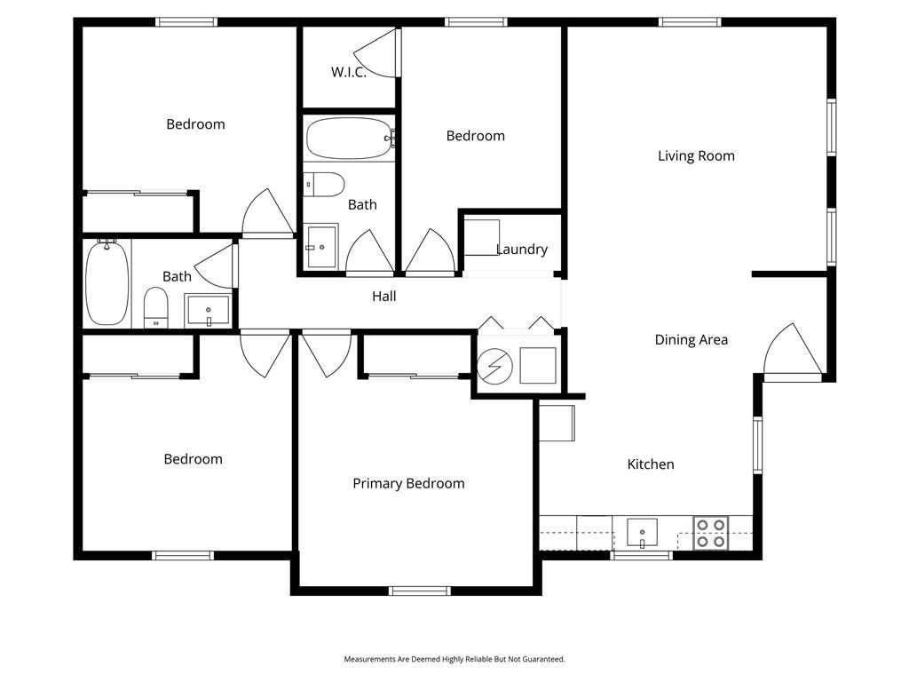
Updated duplex in a convenient location! Each unit has a great layout with four bedrooms, two full bathrooms, eat in kitchen, large living area and laundry. Updated features include light fixtures, bathroom vanities, kitchen cabinets, granite counter tops and tile backsplash. Plenty of on site parking available. Unit 1809 is currently rented and unit 1811 is vacant. This is a great opportunity for a buyer to live in one unit and rent the other! Located near shopping, grocery stores and restaurants. Only 1.5 miles to downtown and about 2 miles to KU. *Open House, Sunday 1/11 12-1pm*

Directions
From 6th st, go North on Wisconsin st, then west on 4th st, duplex is on the left.
Subdivision
Other
City
Lawrence
County
Douglas, KS
Property Type
Residential Income / Duplex
Listing Updated
Jan 09, 2026 at 4:01am
MLS Number
2595283
Property Tax
$4,645
Zoning
$RM24
Home Owners Association
No
Disclaimer
The information displayed on this page is confidential, proprietary, and copyrighted information of Heartland Multiple Listing Service, Inc. (“Heartland MLS”). Copyright 2026, Heartland Multiple Listing Service, Inc. Heartland MLS, Elite Realty and Agent Jo do not make any warranty or representation concerning the timeliness or accuracy of the information displayed herein. In consideration for the receipt of the information on this page, the recipient agrees to use the information solely for the private non-commercial purpose of identifying a property in which the recipient has a good faith interest in acquiring.
The data relating to real estate displayed on this website comes in part from the Heartland Multiple Listing Service database compilation. The properties displayed on this website may not be all of the properties in the Heartland MLS database compilation, or all of the properties listed with other brokers participating in the Heartland MLS IDX program. Detailed information about the properties displayed on this website includes the name of the listing company.
Information is deemed reliable but is not guaranteed.

Copyright © 2026 ELITE Realty.