209 S Folger Street, Carrollton, MO 64633

     
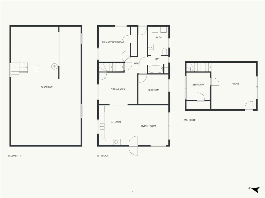
  • 3Beds
  •   
  • 1 Bath
  •  
  • 0½ Baths
  •  
  • 1,632Sq Ft
Mortgage Calculator

$99,900
 est. $412/mo

Affordable and cute 3 Bedroom, 1 Bath Bungalow near the heart of downtown Carrollton! Come see the immense charm and modern updates this home has to offer. Featuring over 1600 square feet of finished living space with updates that include a renovated kitchen and bathroom, newer flooring throughout, energy efficient windows, and a newer roof. Conveniently located within walking distance to local downtown amenities. Don't miss out on this Charmer!

Directions
From Hwy 65, West on E Benton St to W Benton, W Benton to S Folger St.
Subdivision
Other
City
Carrollton
County
Carroll
Property Type
Residential / Villa
Listing Updated
Dec 23, 2025 at 9:12am
MLS Number
2592842
Property Tax
$433
Home Owners Association
No
Disclaimer
The information displayed on this page is confidential, proprietary, and copyrighted information of Heartland Multiple Listing Service, Inc. (“Heartland MLS”). Copyright 2025, Heartland Multiple Listing Service, Inc. Heartland MLS, Elite Realty and Agent Jo do not make any warranty or representation concerning the timeliness or accuracy of the information displayed herein. In consideration for the receipt of the information on this page, the recipient agrees to use the information solely for the private non-commercial purpose of identifying a property in which the recipient has a good faith interest in acquiring.
The data relating to real estate displayed on this website comes in part from the Heartland Multiple Listing Service database compilation. The properties displayed on this website may not be all of the properties in the Heartland MLS database compilation, or all of the properties listed with other brokers participating in the Heartland MLS IDX program. Detailed information about the properties displayed on this website includes the name of the listing company.
Information is deemed reliable but is not guaranteed.

Copyright © 2025 ELITE Realty.