8303 E 110th Terrace, Kansas City, MO 64134

     
  • 4Beds
  •   
  • 2 Baths
  •  
  • 0½ Baths
  •  
  • 1,119Sq Ft
Mortgage Calculator

$190,000
 est. $881/mo

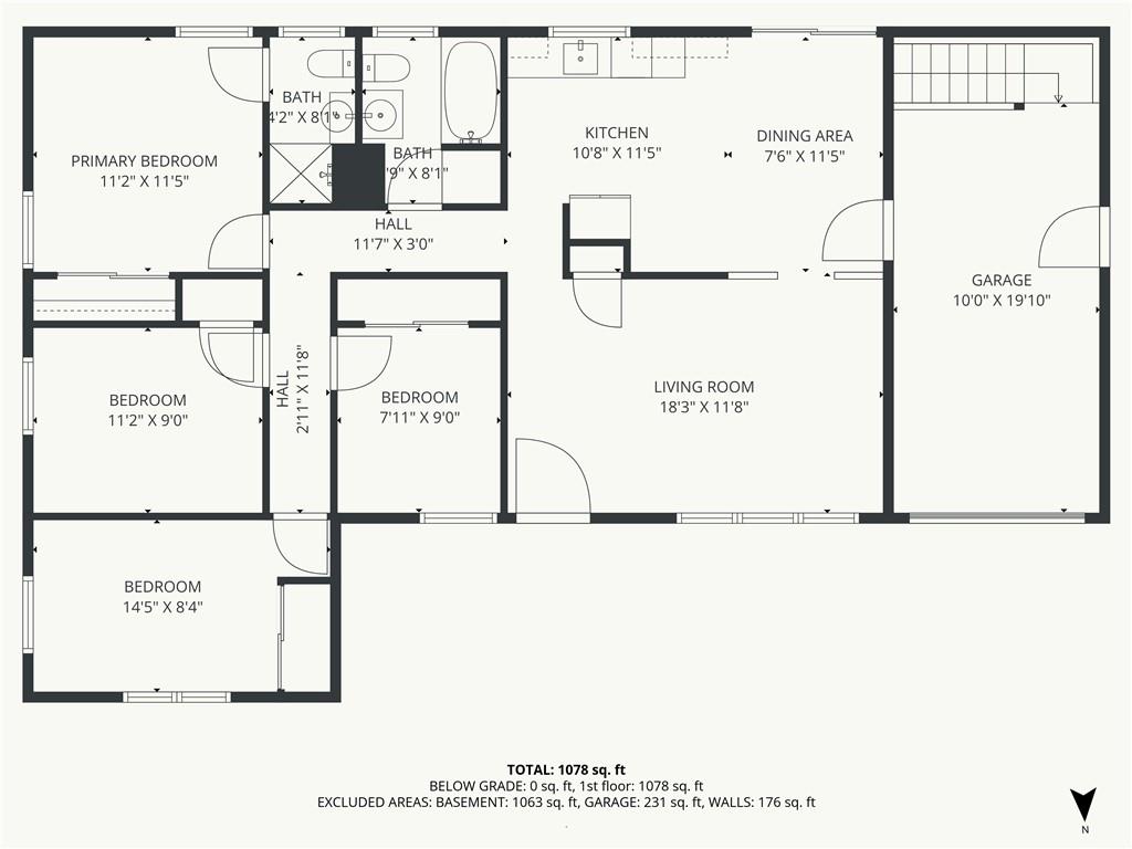
Rarity in this area: charming ranch home with 4 bedrooms, 2 full bathrooms, and spacious lot with mature trees. Hardwoods throughout main level, luxury vinyl plank flooring for durability in wide kitchen. All bedrooms have ceiling fans for comfort, newer windows all around. Kitchen has double sink under picture window overlooking the yard, kitchen exits to back deck. Fridge and washer/dryer stay with the home, along with outdoor fire pit! Primary bedroom has its own full bath, and second full bathroom is in the hall. Large basement ready for you to finish as optional play area, or perfect for storage or a workout, craft, or carpentry area.

Directions
From I-470 exit on Blue Ridge Blvd and go South. Go east (left) onto E 107th St. Go south (right) onto Marsh Ave. At the T-intersection go right, the road curves to the left. Take your first left onto E 110th Terr to the home.
Subdivision
Ruskin Hills
City
Kansas City
County
Jackson
Property Type
Residential / Single Family Residence
Listing Updated
Dec 04, 2025 at 1:12am
MLS Number
2590026
Property Tax
$2,013
Home Owners Association
Yes - Ruskin Hills Homes Association
Disclaimer
The information displayed on this page is confidential, proprietary, and copyrighted information of Heartland Multiple Listing Service, Inc. (“Heartland MLS”). Copyright 2025, Heartland Multiple Listing Service, Inc. Heartland MLS, Elite Realty and Agent Jo do not make any warranty or representation concerning the timeliness or accuracy of the information displayed herein. In consideration for the receipt of the information on this page, the recipient agrees to use the information solely for the private non-commercial purpose of identifying a property in which the recipient has a good faith interest in acquiring.
The data relating to real estate displayed on this website comes in part from the Heartland Multiple Listing Service database compilation. The properties displayed on this website may not be all of the properties in the Heartland MLS database compilation, or all of the properties listed with other brokers participating in the Heartland MLS IDX program. Detailed information about the properties displayed on this website includes the name of the listing company.
Information is deemed reliable but is not guaranteed.

Copyright © 2025 ELITE Realty.