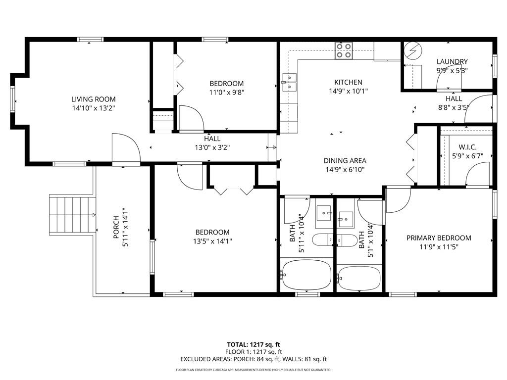
Welcome to your next chapter in Leavenworth - a home that’s been completely refreshed and is ready for you to move right in. This 3-bedroom, 2-bath single-family home (1,272 sq ft) perfectly blends modern updates with cozy charm. Step inside and you’ll immediately notice the bright, open feel, thanks to high ceilings, fresh paint, new flooring, and plenty of natural light. Every detail has been thoughtfully updated - new windows, doors, stainless steel appliances, HVAC, and water heater - so you can enjoy a truly move-in ready, worry-free home. Enjoy quiet mornings on your covered front porch with a cup of coffee or unwind in the evenings as the sun sets. With main-floor living, everything you need is on one level - simple, efficient, and comfortable. Off-street parking adds extra convenience. Located just minutes from Fort Leavenworth and downtown’s restaurants, shops, and local charm, this home is ideal for first-time buyers, young families, empty nesters, or investors looking for a smart, turnkey opportunity. If you’ve been dreaming of an affordable, updated home near downtown Leavenworth, this one is ready to welcome you home.
Copyright © 2025 ELITE Realty.