4923 Appleton Avenue, Kansas City, MO 64133

     
  • 4Beds
  •   
  • 2 Baths
  •  
  • 0½ Baths
  •  
  • 1,616Sq Ft
Mortgage Calculator

$229,500
 est. $1,102/mo

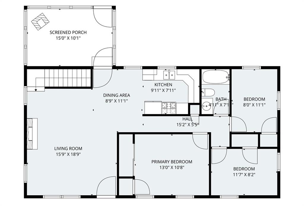
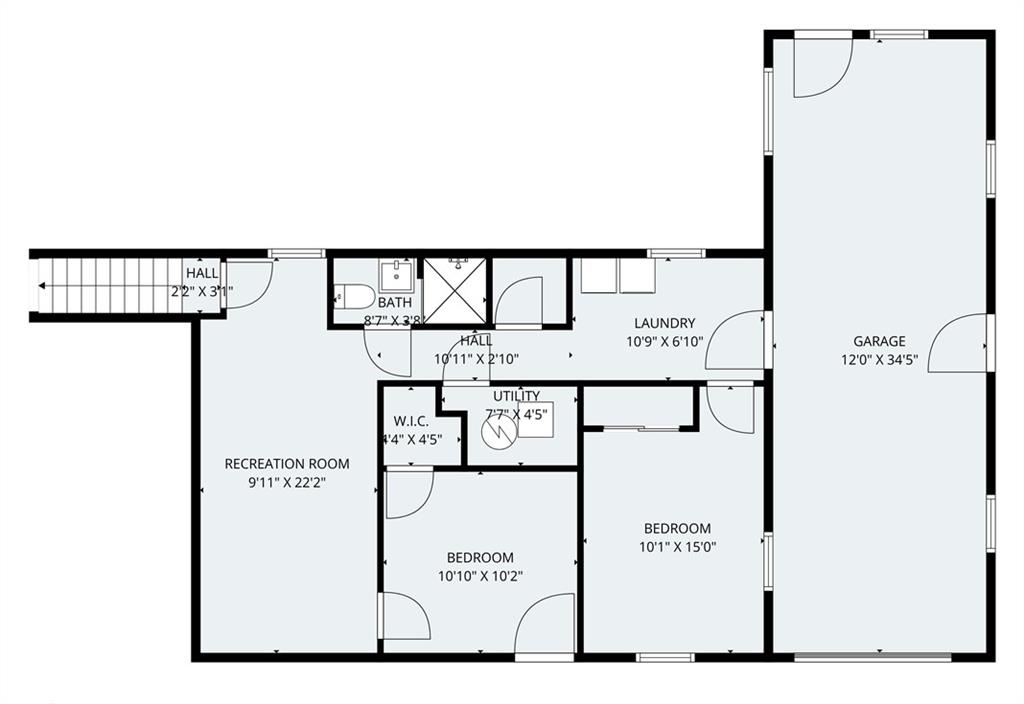
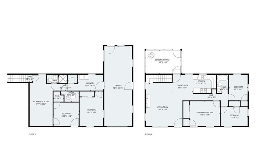
This inviting raised ranch offers a total of 5 bedrooms (3 upstairs + 2 in the basement) and 2 full bathrooms, giving you plenty of space and flexibility for your needs. The fully remodeled basement (completed just last year) feels like its own retreat, featuring a spacious living area, a full bathroom, and two additional bedrooms — one with a window and closet, the other perfect for an office, guest room, or flex space. Upstairs, you’ll love the fresh interior paint, the dining/kitchen combo, and comfortable flow throughout the home. Step out back and unwind in the screened porch with fireplace, overlooking your fenced backyard — perfect for entertaining year-round. This home is move-in ready and offers the versatility you’ve been searching for. Buyers agent to confirm room measurements, lot size, square footage and school district information

Directions
I-70 To Sterling(S)On Sterling To 49th St(W)On 49th To Appleton (S) To Prop
Subdivision
Sterling Gardens
City
Kansas City
County
Jackson
Property Type
Residential / Single Family Residence
Listing Updated
Nov 24, 2025 at 10:11pm
MLS Number
2578791
Property Tax
$2,885
Home Owners Association
No
Disclaimer
The information displayed on this page is confidential, proprietary, and copyrighted information of Heartland Multiple Listing Service, Inc. (“Heartland MLS”). Copyright 2025, Heartland Multiple Listing Service, Inc. Heartland MLS, Elite Realty and Agent Jo do not make any warranty or representation concerning the timeliness or accuracy of the information displayed herein. In consideration for the receipt of the information on this page, the recipient agrees to use the information solely for the private non-commercial purpose of identifying a property in which the recipient has a good faith interest in acquiring.
The data relating to real estate displayed on this website comes in part from the Heartland Multiple Listing Service database compilation. The properties displayed on this website may not be all of the properties in the Heartland MLS database compilation, or all of the properties listed with other brokers participating in the Heartland MLS IDX program. Detailed information about the properties displayed on this website includes the name of the listing company.
Information is deemed reliable but is not guaranteed.

Copyright © 2025 ELITE Realty.