Licensed in BOTH Missouri & Kansas, our team can help all your buying/selling needs in both states! Soon, we will add Arkansas to our list of states!
Educational Designations include CRS, ABR, GRI, SFR, SRS, MRE. RENE, AHWD and ePro. We are members of the National Association of REALTORS®, Missouri Association of REALTORS® and the Kansas City Association of REALTORS® and MLS members of KC, Lake of the Ozarks and Branson/TableRock Lake!
Between us, we have a combined experience of 35 years + hundreds of millions in sales.
We have invested a lot to know how best to serve the community with excellence. Please call one of our Amazing Agents today!
Agent Jo – 816.617.4412
Nate Scott - 816.944.8799
Sam – 816.344.8868
Krista - 816.929.4308
513/515 W Smith Street, Spring Hill, KS 66083
Mortgage Calculator
$550,000
est. $3,065/mo
Previous completed building. Front of full structure- two duplex units
1 of 12
Actual building 10/1
2 of 12
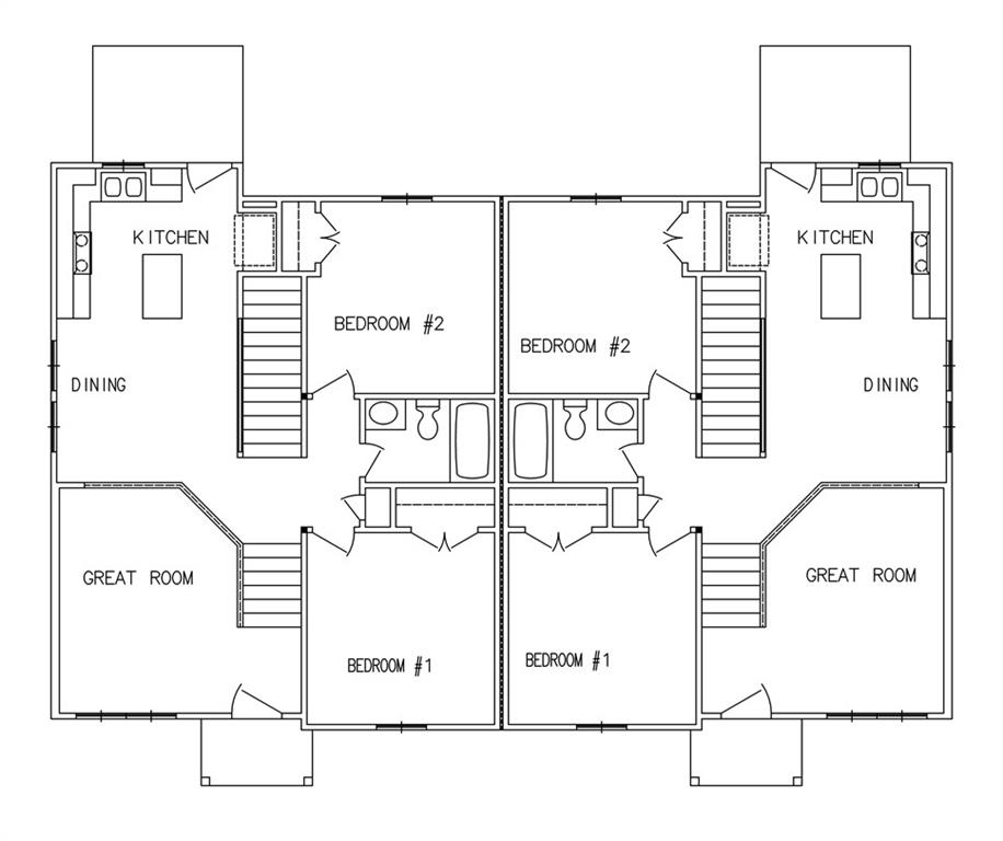
Upper Level -both units
3 of 12
Previous completed building Left Side Unit Great Room
4 of 12
Previous completed building Left Side Unit
5 of 12
Previous completed building Left Side Unit
6 of 12
Previous completed building Left Side Unit
7 of 12
Previous completed building Right Side Unit
8 of 12
Previous completed building Right Side Unit
9 of 12
Previous completed building Right Side Unit
10 of 12
Unfinished walkout lower level of actual building
11 of 12
laundry and stub for additional bath in lower level
12 of 12
New Construction Full duplex Split plan. Open plan with LVP flooring and stainless appliance package. Unfinished walkout lower level is stubbed for additional bathroom.
Directions
From webster, W on Lawrence to Jackson, N to Smtih, W on Smith the building on left.
Licensed in BOTH Missouri & Kansas, our team can help all your buying/selling needs in both states! Soon, we will add Arkansas to our list of states!
Educational Designations include CRS, ABR, GRI, SFR, SRS, MRE. RENE, AHWD and ePro. We are members of the National Association of REALTORS®, Missouri Association of REALTORS® and the Kansas City Association of REALTORS® and MLS members of KC, Lake of the Ozarks and Branson/TableRock Lake!
Between us, we have a combined experience of 35 years + hundreds of millions in sales.
We have invested a lot to know how best to serve the community with excellence. Please call one of our Amazing Agents today!
Agent Jo – 816.617.4412
Nate Scott - 816.944.8799
Sam – 816.344.8868
Krista - 816.929.4308
Disclaimer
The information displayed on this page is confidential, proprietary, and copyrighted information of Heartland Multiple Listing Service, Inc. (“Heartland MLS”). Copyright 2025, Heartland Multiple Listing Service, Inc. Heartland MLS, Elite Realty and Agent Jo do not make any warranty or representation concerning the timeliness or accuracy of the information displayed herein. In consideration for the receipt of the information on this page, the recipient agrees to use the information solely for the private non-commercial purpose of identifying a property in which the recipient has a good faith interest in acquiring.
The data relating to real estate displayed on this website comes in part from the Heartland Multiple Listing Service database compilation. The properties displayed on this website may not be all of the properties in the Heartland MLS database compilation, or all of the properties listed with other brokers participating in the Heartland MLS IDX program. Detailed information about the properties displayed on this website includes the name of the listing company.
Information is deemed reliable but is not guaranteed.